【建築条件付き土地】杉並区永福三丁目31計画
価格
13,200万円(No.1)、11,800万円(No.2)
住所
東京都杉並区永福三丁目240番20、22(地番)
面積
102.83㎡(No.1)、114.50㎡(No.2)
【建築条件付き土地】杉並区宮前五丁目計画
住友不動産総合マンションギャラリー 新宿館内宅地受付
営業時間 10:00〜18:00(火・水曜定休)
住友不動産総合マンションギャラリー 新宿館内宅地受付
営業時間 10:00〜18:00(火・水曜定休)
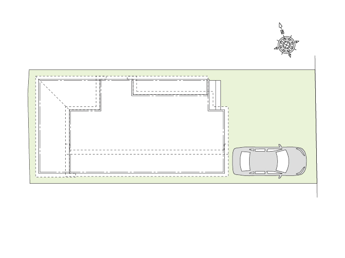
■全体区画イメージ図区画
販売価格
土地面積
No. 1
10,500万円
116.13㎡
.jpeg)
(徒歩4分)
.jpeg)
(徒歩8分)
.jpeg)
(徒歩3分)
.jpeg)
(徒歩3分)
.jpeg)
(徒歩3分)
.jpeg)
(徒歩2分)
-scaled.jpeg)
(徒歩7分)
-scaled.jpeg)
(徒歩5分)
京王電鉄井の頭線「久我山」駅 徒歩9分
JR中央線「西荻窪」駅 徒歩18分
JR中央・総武線「西荻窪」駅 徒歩18分
【建築条件付き土地】杉並区宮前五丁目計画
先着順
先着順受付
1区画
10,500万円
ー
東京都杉並区宮前五丁目235番10、236番3(地番)
京王電鉄井の頭線「久我山」駅 徒歩9分
JR中央線「西荻窪」駅 徒歩18分
JR中央・総武線「西荻窪」駅 徒歩18分
4区画(広告対象外区画2区画含む)
116.13㎡(No.1)
電気(東京電力エナジーパートナー)・ガス(東京ガス)・公営水道(東京都)
東側約4.0m
2025年12月下旬
ー
ー
ー
宅地
第一種低層住居専用地域
建ぺい率・・50% 容積率・・100%
ー
ー
所有権
住友不動産株式会社:国土交通大臣(17)第38号、(一社)不動産協会会員、(公社)首都圏不動産公正取引協議会加盟
〒163-0820
東京都新宿区西新宿二丁目4番1号 新宿NSビル
TEL:050-3112-5099
住友不動産ステップ株式会社
(国土交通大臣免許(13)第2077号(一社)不動産協会、(一社)不動産流通経営協会、(公社)首都圏不動産公正取引協議会)〒163-0206東京都新宿区西新宿2-6-1 TEL:03-3346-1021
景観法、 宅地造成工事規制区域、 高度地区、 準防火地域、 高さ最高限度有、 敷地面積の最低限度有、 日影制限有
【建築条件付き土地】
土地売買契約から3ヶ月以内に、住友不動産ハウジングと建築請負契約の締結が条件です。
※この期限を過ぎると契約は解除され、土地代金(申込証拠金、手付金等を含む)を速やかに返還致します。
※土地区画の分筆未了のため、記載の土地面積に差異が生じる場合があります。
※本物件敷地の南東側は、建築基準法第42条2項道路に基づき、建築時には道路境界線後退(セットバック)が必要です。なお、記載の土地面積・道路幅員の数値はセットバック後のものです。
※距離表示については地図上の概測距離を、徒歩分数表示については80mを1分として、端数を切り上げたものです。
【お詫びと訂正】
物件概要の工事完了予定スケジュールに変更がありました。
お詫びすると共に訂正させていただきます。
(誤)2025年10月下旬
(正)2025年12月下旬
2025/11/27
2025/11/13
2025/11/20
住友不動産総合マンションギャラリー 新宿館内宅地受付
営業時間 10:00〜18:00(火・水曜定休)
住友不動産総合マンションギャラリー 新宿館内宅地受付
営業時間 10:00〜18:00(火・水曜定休)












※住友不動産ハウジングの長期60年保証システムは、お引き渡しから10年ごとに点検をさせていただき、
住友不動産ハウジングが必要と認めた有料メンテナンス工事を住友不動産ハウジング施工により実施していただいた場合、
構造躯体(地下室を除く)に限り、お引き渡しから最大60年保証する安心のシステムです。