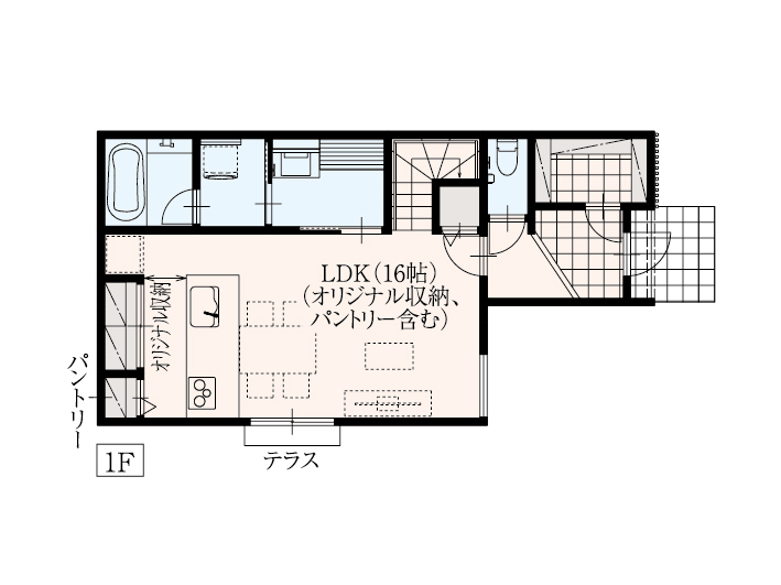
【建築条件付き土地】世田谷区砧二丁目計画
価格
8,850万円
住所
東京都世田谷区砧二丁目3100番25(地番)
面積
76.02㎡
【建築条件付き土地】世田谷区砧三丁目計画
住友不動産総合マンションギャラリー 新宿館内宅地受付
営業時間 10:00〜18:00(火・水曜定休)
住友不動産総合マンションギャラリー 新宿館内宅地受付
営業時間 10:00〜18:00(火・水曜定休)
■全体区画イメージ図区画
販売価格
土地面積
No. 1
10,200万円
103.74㎡
No. 2
10,200万円
103.75㎡
小田急小田原線「祖師ヶ谷大蔵」駅徒歩12分
【建築条件付き土地】世田谷区砧三丁目計画
先着順
先着順受付
2区画
10,200万円(2区画とも)
-
東京都世田谷区砧三丁目193番62(地番)
小田急小田原線「祖師ヶ谷大蔵」駅徒歩12分
2区画
103.74㎡(No.1)、103.75㎡(No.2)
電力(東京電力エナジーパートナー)、ガス(東京ガス)、公営水道(東京都)
東側約4.0m
2025年12月中旬
-
-
-
宅地
第一種低層住居専用地域
建ぺい率・・・50% 容積率・・・100%
-
-
所有権
住友不動産株式会社:国土交通大臣(17)第38号、(一社)不動産協会会員、(公社)首都圏不動産公正取引協議会加盟
〒163-0820
東京都新宿区西新宿二丁目4番1号 新宿NSビル
TEL:050-3112-5099
東急リバブル株式会社
国土交通大臣(12)第2611号 一般社団法人不動産流通経営協会会員、一般社団法人不動産協会会員、公益社団法人首都圏不動産公正取引協議会加盟
〒157-0066 東京都世田谷区成城2丁目33-13 パールハウス服部 1階 TEL:03-3415-2101
景観法、 宅地造成工事規制区域、 高度地区、 準防火地域、 高さ最高限度有、 敷地面積の最低限度有、 日影制限有
【建築条件付き土地】
土地売買契約から3ヶ月以内に、住友不動産ハウジングと建築請負契約の締結が条件です。
※この期限を過ぎると契約は解除され、土地代金(申込証拠金、手付金等を含む)を速やかに返還致します。
※土地区画の分筆未了のため、記載の土地面積に差異が生じる場合があります。
※世田谷区中高層建築物等の建築に係る紛争の予防と調整に関する条例あり。
※世田谷区風景づくり条例あり。
※距離表示については敷地全体(当該販売期)における最短地点および最長地点までの地図上の概測距離を、徒歩分数表示については80mを1分として、端数を切り上げたものです。
2025/11/27
2025/11/13
2025/11/20
住友不動産総合マンションギャラリー 新宿館内宅地受付
営業時間 10:00〜18:00(火・水曜定休)
住友不動産総合マンションギャラリー 新宿館内宅地受付
営業時間 10:00〜18:00(火・水曜定休)












※住友不動産ハウジングの長期60年保証システムは、お引き渡しから10年ごとに点検をさせていただき、
住友不動産ハウジングが必要と認めた有料メンテナンス工事を住友不動産ハウジング施工により実施していただいた場合、
構造躯体(地下室を除く)に限り、お引き渡しから最大60年保証する安心のシステムです。