シティガーデン箕面桜ヶ丘
- 建築条件付
- 給水管引込み済
- 更地引渡
住友不動産総合マンションギャラリー 新宿館内宅地受付
営業時間 10:00〜18:00(火・水曜定休)
住友不動産総合マンションギャラリー 新宿館内宅地受付
営業時間 10:00〜18:00(火・水曜定休)
おすすめポイント
- 前面道路6m以上
- 小学校800m(徒歩10分)以内
- 保育施設・幼稚園400m(徒歩5分以内)
- スーパー800m(徒歩10分)以内
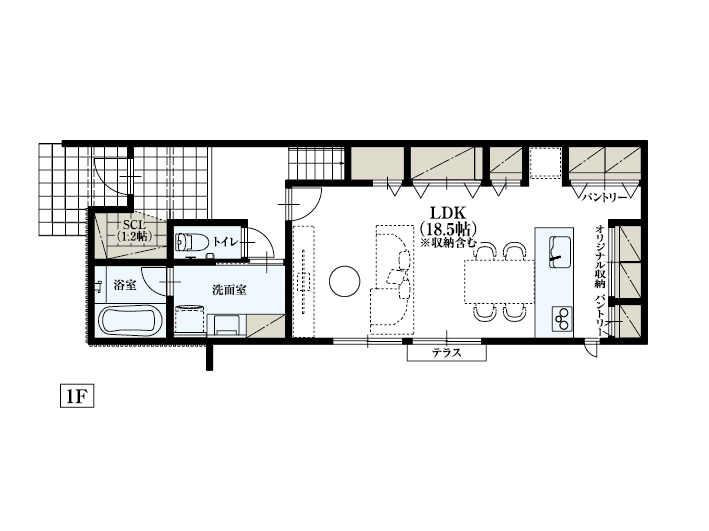
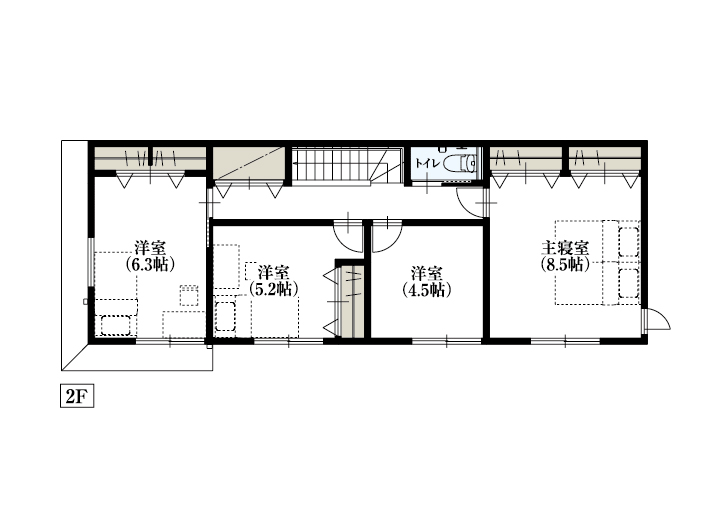
建物参考プラン
- 区画No.
- No.2
- 土地価格
- 4,990万円
- 建物価格
- 4,280万円
- 合計
- 9,270万円
- 1F
- 56.58㎡(17.11坪)
- 2F
- 57.96㎡(17.53坪)
- 合計
- 114.54㎡(34.64坪)
※家具・調度品は価格に含まれません。詳しくは係員にお尋ねください。【プラン内容に含まれるもの】本体工事費・付帯工事(屋外給排水・ガス工事費)・建築確認申請料・設計料
※家具・調度品等はイメージです。
- 区画No.
- No.3
- 土地価格
- 5,500万円
- 建物価格
- 4,490万円
- 合計
- 9,990万円
- 1F
- 57.13㎡(17.28坪)
- 2F
- 57.96㎡(17.53坪)
- 合計
- 115.09㎡(34.81坪)
※家具・調度品は価格に含まれません。詳しくは係員にお尋ねください。【プラン内容に含まれるもの】本体工事費・付帯工事(屋外給排水・ガス工事費)・建築確認申請料・設計料
※家具・調度品等はイメージです。
区割図
販売区画
販売中の物件情報
区画
販売価格
土地面積
No. 2
4,990万円
151.50㎡
No. 3
5,500万円
151.51㎡
周辺施設

【買い物】ライフ箕面桜ケ丘店
(徒歩7分)

【買い物】デイリーヤマザキ 箕面桜井店
(徒歩9分)

【買い物】キリン堂 箕面桜ケ丘店
(徒歩6分)

【公園】止々呂渕公園
(徒歩6分)

【保育園】箕面市立桜ケ丘保育所
(徒歩1分)

【学校】箕面市立南小学校
(徒歩7分)

【学校】箕面市立第三中学校
(徒歩15分)

【図書館】箕面市立図書館 桜ヶ丘図書館
(徒歩6分)
現地案内図
- Googlemap
- 現地案内図
阪急電鉄箕面線「桜井」駅 徒歩9分
※距離表示については地図上の概測距離を、徒歩分数表示については80mを1分として、端数を切り上げたものです。※掲載の現地案内図は一部道路・施設等を抜粋して表記しています。
物件概要
-
物件名
シティガーデン箕面桜ヶ丘
-
販売期
先着順
■販売概要
販売スケジュール
先着順受付
販売区画数
2区画
販売価格
4,990万円 ~ 5,500万円
最多価格帯
-
■物件概要
所在地
大阪府箕面市桜ケ丘三丁目327番9(地番)
交通
阪急電鉄箕面線「桜井」駅 徒歩9分
総区画数
4区画(広告対象外区画1区画含む)
土地面積
151.50㎡(No.2)、151.51㎡(No.3)
主たる設備の概要
電気(関西電力)・ガス(大阪ガス)・公営水道
道路幅員
西側約6.5m(No.2)、西側約6.5m~南側約4.6m(No.3)
工事完了予定
完成済
私道負担
-
その他負担
-
負担金
-
地目
宅地
用途地域
第一種低層住居専用地域
建ぺい率・容積率
建ぺい率・・・60% 容積率・・・150%
開発許可番号
-
開発面積
-
購入後の権利形態
所有権
売主(土地)
住友不動産株式会社:国土交通大臣(17)第38号、(一社)不動産協会会員、(公社)首都圏不動産公正取引協議会加盟
〒163-0820
東京都新宿区西新宿二丁目4番1号 新宿NSビル
TEL:050-3112-5099仲介
住友不動産ステップ株式会社
(国土交通大臣免許(13)第2077号(一社)不動産協会、(一社)不動産流通経営協会、(公社)首都圏不動産公正取引協議会)〒163-0206東京都新宿区西新宿2-6-1 TEL:03-3346-1021法令に基づく制限
景観法、 航空法、 宅地造成工事規制区域、 高度地区、 高さ最高限度有、 敷地面積の最低限度有、 日影制限有、壁面後退有、建築基準法第22条区域、特別用途地区、箕面市まちづくり推進条例
その他特記事項
【建築条件付き土地】
土地売買契約から3ヶ月以内に、住友不動産ハウジングと建築請負契約の締結が条件です。
※この期限を過ぎると契約は解除され、土地代金(申込証拠金、手付金等を含む)を速やかに返還致します。
※土地区画の分筆未了のため、記載の土地面積に差異が生じる場合があります。
※距離表示については地図上の概測距離を、徒歩分数表示については80mを1分として、端数を切り上げたものです。
取引条件の有効期限
2026/05/15
更新日
2026/05/08
次回更新予定日
2026/05/15
土地問い合わせ先
住友不動産総合マンションギャラリー 新宿館内宅地受付
営業時間 10:00〜18:00(火・水曜定休)
住友不動産総合マンションギャラリー 新宿館内宅地受付
営業時間 10:00〜18:00(火・水曜定休)






















