【建築条件付き土地】三鷹市井の頭五丁目計画
- 給水管引込み済
- 更地引渡
住友不動産総合マンションギャラリー 新宿館内宅地受付
営業時間 10:00〜18:00(火・水曜定休)
おすすめポイント
- 最寄り駅が始発駅
- 2路線以上利用可
- 公園400m(徒歩5分以内)
住友不動産総合マンションギャラリー 新宿館内宅地受付
営業時間 10:00〜18:00(火・水曜定休)
区割図
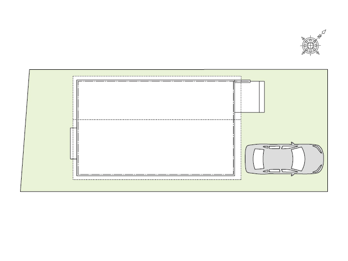
■全体区画イメージ図※掲載の区画配置イメージ図は、計画段階の図面を基に描き起こしたもので、実際とは多少異なります。また、一部敷地外の道路等を合わせて着彩しています。※本物件敷地の北東側は、建築基準法第42条2項道路に基づき、建築時には道路境界線後退(セットバック)が必要です。なお、記載の土地面積、道路幅員の数値はセットバック後のものです。(No.3)
販売区画
区画
販売価格
土地面積
No. 1
11,500万円
126.79㎡
No. 3
11,000万円
126.79㎡
周辺施設

【学校】三鷹市立第五小学校
(徒歩13分)

【学校】三鷹市立第三中学校
(徒歩13分)

【レジャー】 都立井の頭恩賜公園
(徒歩4分)

【買い物】ライフ 吉祥寺駅前店
(徒歩14分)

【買い物】スーパーマーケット リコス 吉祥寺南町2丁目店
(徒歩17分)

【買い物】ココカラファイン 吉祥寺南口店
(徒歩13分)

【買い物】セブンイレブン 吉祥寺井の頭公園入口店
(徒歩6分)

【買い物】吉祥寺PARCO
(徒歩12分)

【買い物】吉祥寺マルイ
(徒歩12分)
現地案内図
- Googlemap
- 現地案内図
JR中央線・総武線、京王井の頭線「吉祥寺」駅 徒歩13分(公園ルート)
JR中央線・総武線、京王井の頭線「吉祥寺」駅 徒歩14分(公道ルート)
建物参考プラン
- 区画No.
- No.3
- 土地価格
- 11,000万円
- 建物価格
- 3,470万円
- 総額
- 14,470万円
- 1F
- 49.68㎡(15.02坪)
- 2F
- 49.68㎡(15.02坪)
- 合計
- 99.36㎡(30.05坪)
※家具・調度品は価格に含まれません。詳しくは係員にお尋ねください。【プラン内容に含まれるもの】本体工事費・付帯工事(屋外給排水・ガス工事費)・建築確認申請料・設計料
※家具・調度品等はイメージです。
物件概要
-
物件名
【建築条件付き土地】三鷹市井の頭五丁目計画
-
販売期
先着順
■販売概要
販売スケジュール
先着順受付
販売区画数
2区画
販売価格
11,000万円 ~ 11,500万円
最多価格帯
ー
■物件概要
所在地
東京都三鷹市井の頭五丁目447-22、131、133(地番)
交通
JR中央線・総武線、京王井の頭線「吉祥寺」駅 徒歩13分(公園ルート)
JR中央線・総武線、京王井の頭線「吉祥寺」駅 徒歩14分(公道ルート)総区画数
3区画
土地面積
126.79㎡(2区画とも)
主たる設備の概要
電気(東京電力エナジーパートナー)・ガス(東京ガス)・公営水道(東京都)
道路幅員
北西側約4.0m、北東側約3.7m
工事完了予定
完成済
私道負担
ー
その他負担
ー
負担金
ー
地目
宅地
用途地域
第一種低層住居専用地域
建ぺい率・容積率
建ぺい率・・40% 容積率・・80%
開発許可番号
ー
開発面積
ー
購入後の権利形態
所有権
売主(土地)
住友不動産株式会社:国土交通大臣(17)第38号、(一社)不動産協会会員、(公社)首都圏不動産公正取引協議会加盟
〒163-0820
東京都新宿区西新宿二丁目4番1号 新宿NSビル
TEL:050-3112-5099仲介
住友不動産ステップ株式会社
(国土交通大臣免許(13)第2077号(一社)不動産協会、(一社)不動産流通経営協会、(公社)首都圏不動産公正取引協議会)〒163-0206東京都新宿区西新宿2-6-1 TEL:03-3346-1021法令に基づく制限
景観法、 宅地造成工事規制区域、 高度地区、 準防火地域、 高さ最高限度有、 敷地面積の最高限度有、 日影制限有、隅切り有
【文化財保護法】
対象不動産は周知の埋蔵文化財包蔵地(遺跡の名称:井の頭池遺跡群A)内にあるため、建築工事をおこなう場合には事業着手60日前までに三鷹市教育委員会教育長に届け出る必要があります。その他特記事項
【建築条件付き土地】
土地売買契約から3ヶ月以内に、住友不動産ハウジングと建築請負契約の締結が条件です。
※この期限を過ぎると契約は解除され、土地代金(申込証拠金、手付金等を含む)を速やかに返還致します。
※本物件敷地の北東側は、建築基準法第42条2項道路に基づき、建築時には道路境界線後退(セットバック)が必要です。なお、記載の土地面積、道路幅員の数値はセットバック後のものです。(No.3)
※距離表示については敷地全体(当該販売期)における最短地点および最長地点までを、徒歩分数表示については80mを1分として、端数を切り上げたものです。
※掲載の現地案内図は一部道路・施設等を抜粋して表記しています。
取引条件の有効期限
2025/10/30
更新日
2025/10/23
次回更新予定日
2025/10/30
土地問い合わせ先
住友不動産総合マンションギャラリー 新宿館内宅地受付
営業時間 10:00〜18:00(火・水曜定休)
住友不動産総合マンションギャラリー 新宿館内宅地受付
営業時間 10:00〜18:00(火・水曜定休)






















